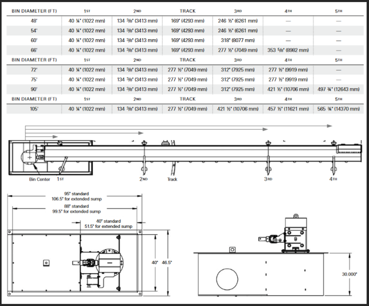
AGI Hutchinson’s Hi-Flow Sweep is engineered for use in the industry’s largest bins.
Features:
1/4" flights mounted on 3” schedule 40 pipe
Heavy-duty backboard with a 5/8" rubber scraper
Zero-entry controls with panels located outside the silo
Below floor motor assembly which can be accessed from the reclaim tunnel at any time
Adjustable front and rear wheels to level uneven floors
Forward and reverse hydraulically driven track drive eliminates drive wheel spinning or climbing in grain piles

