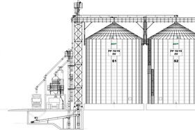
The L-Line bucket elevator is designed to elevate grain from the lower to the upper part of the plant. The most common applications are for small- to medium-sized storage plants, and for daily operations during harvest seasons.
It is the ideal setup for capacities up to 200t/h and is suited both for outdoor and indoor agricultural applications.








